0
Réf : ML/B-241-2

Appartement T1 - 2023 - 35.80 m² - Terrasse - Parking + Cave + Local à vélos

Guérande (44350)
256 000 €

A propos de ce bien

Le Cabinet Cobalt Immobilier a le plaisir de vous proposer ce vaste appartement de Type T1 neuf de standing de 2023, de plus de 35 m² au 2ème étage d’une résidence sécurisée. Situé dans un secteur privilégié de Guérande, chemin de Mauperthuis, à deux pas de la célèbre Cité médiévale, proche de l'avenue Anne de Bretagne, vous trouverez commerces, services, transports en commun, accès rapide à la départementale vous menant vers Saint-Nazaire, il sera parfait à la vie active.

La résidence vous offrira calme et bien-être. Cette résidence est piètonne. Vous pourrez profiter ainsi du terrain de pétanque et des espaces verts en toute liberté et en toute quiétude pour vos enfants.

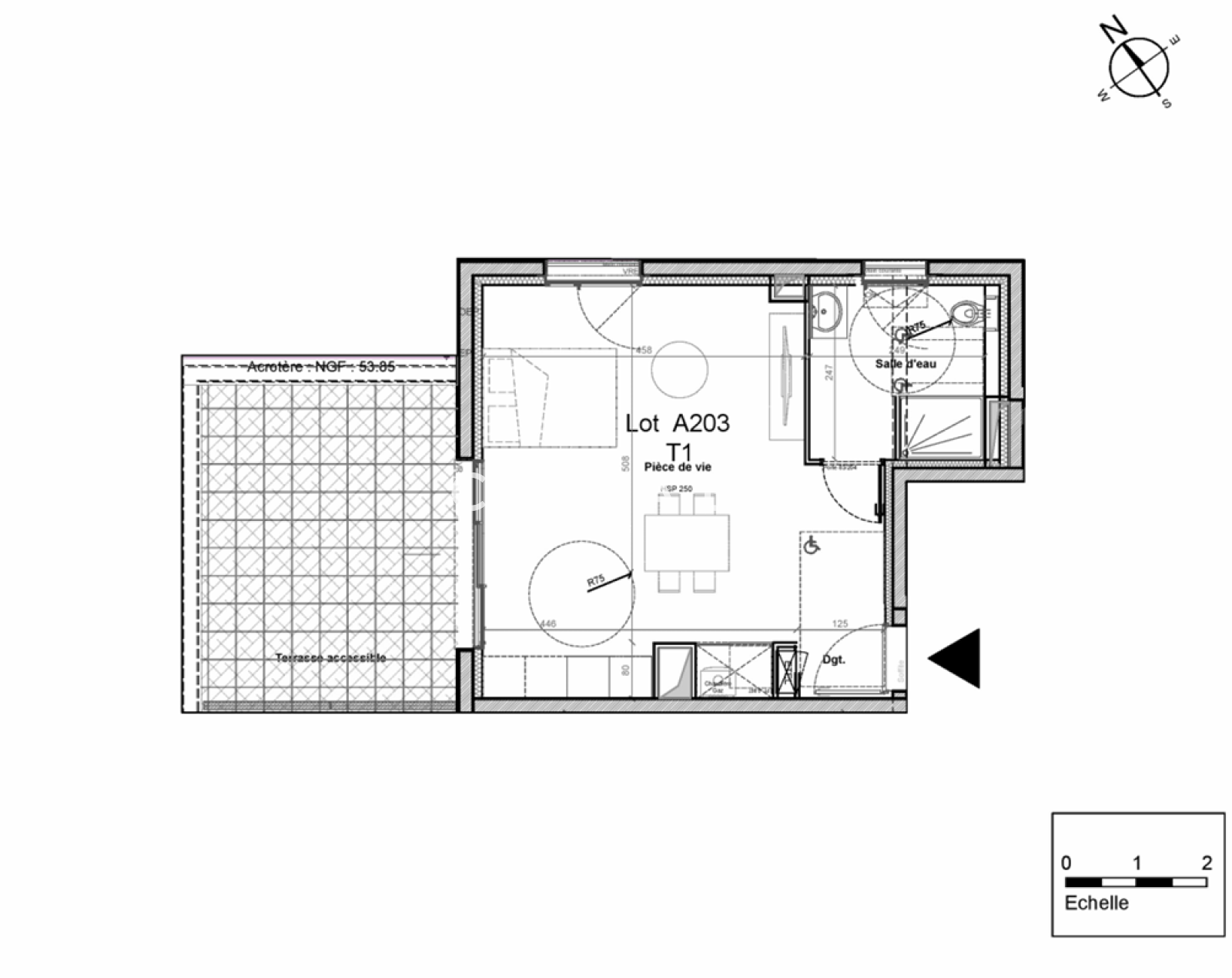
L'appartement se compose d'une vaste pièce de vie avec placards, particulièrement lumineuse grâce à son exposition ouest, d'environ 30 m² avec son espace cuisine aménagée et semi-équipée (réfrigérateur top, hotte, plaques de cuisson) et donnant accès sur la terrasse, ainsi que d'une salle d'eau avec douche à l'italienne et WC. La terrasse d'environ 18 m² vous permettra de l'aménager selon vos envies et ainsi de créer une véritable pièce à part entière.

Les prestations sont de grande qualité : Bac de douche extra-plat, baie coulissante 3 ventaux, finitions soignées, confort acoustique et thermique optimal.

Une place de stationnement privative en sous-sol, une cave privative, un local à vélos avec carport en commun viennent compléter ce bien.

Les atouts : secteur recherché, proche des commodités, garanties décennales, finitions de qualité, normes PMR

FRAIS DE NOTAIRE REDUITS / PRIX PROMOTEUR

Bien en copropriété. Copropriété de 143 lots dont 78 lots d'habitation. Charges de copropriété de 198 € / trimestre, soit 66 € / mois, comprenant l'électricité et le ménage des parties communes, l'entretien des espaces verts, l'entretien de l'ascenseur, les ordures ménagères, l'assurance de la copropriété. Estimations des coûts annuels des énergies compris entre 200 € et 340 € (abonnements compris). Prix indexés sur l'année 2021. Honoraires d'agence à la charge du Vendeur. Prix de vente : 256 000 €. Pour de plus amples renseignements, veuillez contacter Mathilde LAMBERT soit par téléphone au 06.58.62.85.46 soit par mail mathilde.lambert@cobalt-immobilier.fr.

Réf : ML/B-241-2

Descriptif du bien

TRAD_PAMPERO_Caracteristique Valeurs
Code postal 44350
Surface habitable (m²) 35,80 m²
Surface loi Carrez (m²) 35,80 m²
Nombre de pièces 1
Etage 2
TRAD_PAMPERO_Caracteristique Valeurs
Nb de salle d'eau 1
Cuisine Américaine
Type de cuisine SEMI-EQUIPEE
Balcon NON
Terrasse OUI
Cave OUI
Exposition Ouest
Année de construction 2023
TRAD_PAMPERO_Caracteristique Valeurs
Copropriété OUI
nombre de lots 36
TRAD_PAMPERO_Caracteristique Valeurs
Prix de vente 256 000 €
Les honoraires d'agence seront intégralement à la charge du vendeur  
DPE GES
Ce bien vous intéresse ?
Fieldset par défaut
Fieldset par défaut
Validation

* Champs obligatoires

Contacter l'agence
Validation
Les informations recueillies sur ce formulaire sont enregistrées dans un fichier informatisé par La Boite Immo agissant comme Sous-traitant du traitement pour la gestion de la clientèle/prospects de l'Agence / du Réseau qui reste Responsable du Traitement de vos Données personnelles. La base légale du traitement repose sur l'intérêt légitime de l'Agence / du Réseau. Elles sont conservées jusqu'à demande de suppression et sont destinées à l'Agence / au Réseau. Conformément à la loi « informatique et libertés », vous disposez des droits d’accès, de rectification, d’effacement, d’opposition, de limitation et de portabilité de vos données. Vous pouvez retirer votre consentement à tout moment en contactant directement l’Agence / Le Réseau. Consultez le site https://cnil.fr/fr pour plus d’informations sur vos droits. Si vous estimez, après avoir contacté l'Agence / le Réseau, que vos droits « Informatique et Libertés » ne sont pas respectés, vous pouvez adresser une réclamation à la CNIL. Nous vous informons de l’existence de la liste d'opposition au démarchage téléphonique « Bloctel », sur laquelle vous pouvez vous inscrire ici : https://www.bloctel.gouv.fr Dans le cadre de la protection des Données personnelles, nous vous invitons à ne pas inscrire de Données sensibles dans le champ de saisie libre.
Ce site est protégé par reCAPTCHA, les Politiques de Confidentialité et les Conditions d'Utilisation de Google s'appliquent.