0
Réf : ML/B-241-3

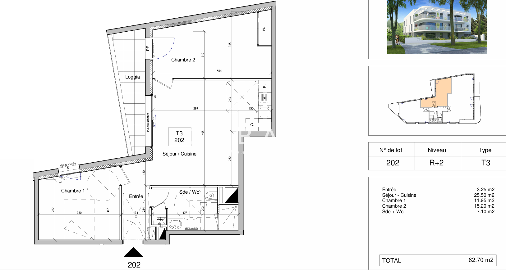
Appartement récent 2023 - Type T3 - 62.70 m² - Secteur Sautron / Villès Martin

Saint-Nazaire (44600)
472 000 €

A propos de ce bien

BIEN SUR LE MARCHE - Le Cabinet Cobalt Immobilier a le plaisir de vous proposer cet appartement de Type T3 neuf de standing, de plus de 62 m² au 2ème étage avec ascenseur d’une résidence sécurisée. Situé dans un secteur privilégié et recherché de Saint-Nazaire, secteur Sautron / Villès Martin, face aux pêcheries, à seulement 2 minutes en voiture du Parc Paysager et du Skatepark, à 5 minutes du centre-ville, il saura allier vie active et détente.

L'appartement se compose d'une entrée, d'une pièce de vie de plus de 25 m² avec son espace cuisine à aménager et à équiper selon vos envies, le tout exposé ouest et donnant sur le balcon carrelé, idéal pour profiter de petits moments de détente confortablement installé, de deux chambres dont une avec placards et accès sur le balcon, ainsi que d'une salle d'eau avec douche à l'italienne bac extra-plat et WC.

Les prestations sont de grande qualité, les finitions sont soignées, le confort acoustique et thermique sont optimals.

Un garage privatif en sous-sol, un jardin partagé / potager et un local à vélos en commun viennent compléter ce bien.

Les atouts : garage avec porte motorisée sectionnelle, secteur idyllique et recherché, garanties décennales, places de stationnement visiteurs sécurisées en sous-sol.

FRAIS DE NOTAIRE REDUITS / PRIX PROMOTEUR

Bien en copropriété. Copropriété de 25 lots dont 10 lots d'habitation. Charges de copropriété 378 € / trimestre soit 126 € / mois comprenant l'électricité et le ménage des parties communes, l'entretien des espaces verts, les ordures ménagères et l'assurance de la copropriété. Estimations des coûts annuels des énergies compris entre 454 € et 615 € (abonnements compris). Prix indexés sur l'année 2021. Honoraires d'agence à la charge du Vendeur. Prix de vente : 472 000 €. Pour de plus amples renseignements, veuillez contacter Mathilde LAMBERT soit par téléphone au 06.58.62.85.46 soit par mail mathilde.lambert@cobalt-immobilier.fr.

Réf : ML/B-241-3

Descriptif du bien

TRAD_PAMPERO_Caracteristique Valeurs
Code postal 44600
Surface habitable (m²) 62,70 m²
Surface loi Carrez (m²) 62,70 m²
Nombre de chambre(s) 2
Nombre de pièces 3
Etage 2
Ascenseur OUI
Vue MER
TRAD_PAMPERO_Caracteristique Valeurs
Nb de salle d'eau 1
Cuisine Américaine
Mode de chauffage Gaz de ville
Type de chauffage Chaudiére
Format de chauffage Individuel
Interphone OUI
Balcon OUI
Terrasse NON
Nombre de garage 1
Cave NON
Exposition Ouest
Année de construction 2023
TRAD_PAMPERO_Caracteristique Valeurs
Copropriété OUI
TRAD_PAMPERO_Caracteristique Valeurs
Prix de vente 472 000 €
Les honoraires d'agence seront intégralement à la charge du vendeur  
DPE GES
Ce bien vous intéresse ?
Fieldset par défaut
Fieldset par défaut
Validation

* Champs obligatoires

Contacter l'agence
Validation
Les informations recueillies sur ce formulaire sont enregistrées dans un fichier informatisé par La Boite Immo agissant comme Sous-traitant du traitement pour la gestion de la clientèle/prospects de l'Agence / du Réseau qui reste Responsable du Traitement de vos Données personnelles. La base légale du traitement repose sur l'intérêt légitime de l'Agence / du Réseau. Elles sont conservées jusqu'à demande de suppression et sont destinées à l'Agence / au Réseau. Conformément à la loi « informatique et libertés », vous disposez des droits d’accès, de rectification, d’effacement, d’opposition, de limitation et de portabilité de vos données. Vous pouvez retirer votre consentement à tout moment en contactant directement l’Agence / Le Réseau. Consultez le site https://cnil.fr/fr pour plus d’informations sur vos droits. Si vous estimez, après avoir contacté l'Agence / le Réseau, que vos droits « Informatique et Libertés » ne sont pas respectés, vous pouvez adresser une réclamation à la CNIL. Nous vous informons de l’existence de la liste d'opposition au démarchage téléphonique « Bloctel », sur laquelle vous pouvez vous inscrire ici : https://www.bloctel.gouv.fr Dans le cadre de la protection des Données personnelles, nous vous invitons à ne pas inscrire de Données sensibles dans le champ de saisie libre.
Ce site est protégé par reCAPTCHA, les Politiques de Confidentialité et les Conditions d'Utilisation de Google s'appliquent.