0
Réf : AH-467
Exclusif

Appartement 3 pièces - Dernier étage - PARIS XVII - Batignolles

Paris (75017)
650 000 €

A propos de ce bien

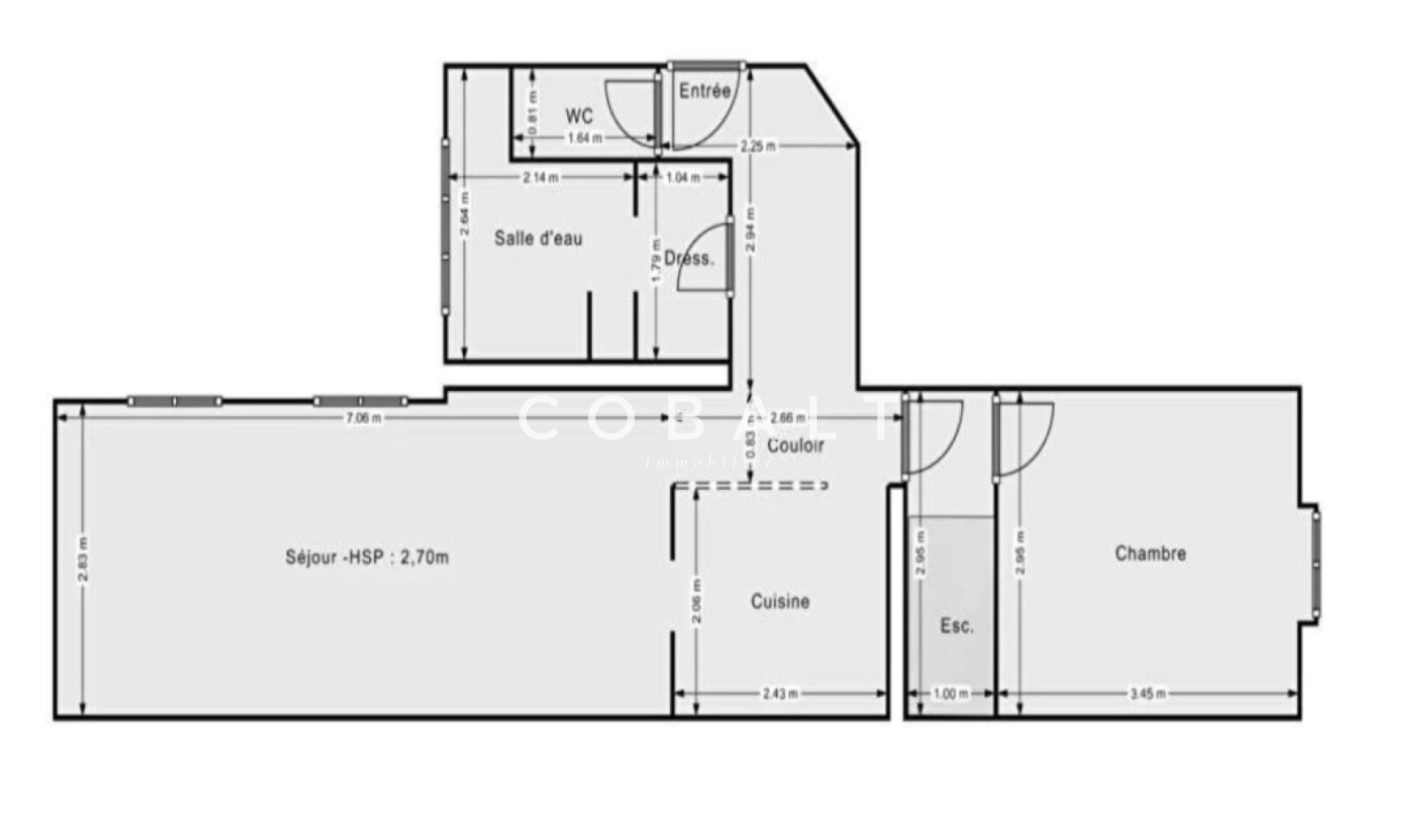
Coup de coeur garanti pour ce joli duplex calme et lumineux en avant dernier et dernier étages en plein coeur des Batignolles! Le Cabinet Cobalt Immobilier vous présente en exclusivité ce trois pièces de 60 m², refait à neuf avec goût, rue Nollet, à deux pas du métro Brochant et du square des Batignolles. Il se compose au cinquième étage d'un grand espace de vie avec cuisine US de 21 m² bénéficiant d'une jolie lumière lors des couchers de soleil grâce à son orientation Ouest, d'une chambre à l'Est, d'une salle de bain avec un grand dessing et des WC séparés. Au sixème et dernier étage, un charmant bureau pouvant servir de deuxième chambre donnant sur les toits de Paris. Un parking à velo est présent dans la cour de l'immeuble.

A noter, la bonne note énergétique en D intéressante pour des investissements locatifs. Une cave complète ce bien. L'appartement est proposé au prix de 650 000 € net vendeur - Pas de frais d'agence à la charge de l'acquéreur - Bien en copropriété - Copropriété de 17 propriétaires - Pas de procédure en cours. Budget copro: 354 € / trimestre. Taxe foncière 2022 : 732 €. Pour plus d'informations, veuillez contacter Mme Anne-Flore Hertz au 07 82 89 75 67, agent commercial enregistré sous le numéro 2021AC00825 au Greffe de Paris.

Descriptif du bien

TRAD_PAMPERO_Caracteristique Valeurs
Code postal 75017
Surface habitable (m²) 60 m²
Surface loi Carrez (m²) 60 m²
Nombre de chambre(s) 2
Nombre de pièces 3
Etage 6
Nombre de niveaux 2
Vue Toits de Paris
TRAD_PAMPERO_Caracteristique Valeurs
Nb de salle de bains 1
Nb de salle d'eau 1
Cuisine Américaine
Type de cuisine Equipée
Mode de chauffage Gaz
Type de chauffage Radiateur
Format de chauffage Individuel
Interphone OUI
Visiophone OUI
Balcon NON
Terrasse NON
Cave OUI
Surface cave (m²) 5
Exposition Est-Ouest
Année de construction 1870
TRAD_PAMPERO_Caracteristique Valeurs
Copropriété OUI
Lot n° 10
nombre de lots 37
Quote Part annuelle des charges 1 416 €
plan de sauvegarde NON
statut du syndic pas de procédure en cours
TRAD_PAMPERO_Caracteristique Valeurs
Prix de vente 650 000 €
Les honoraires d'agence seront intégralement à la charge du vendeur  
Charges 354 €
Taxe foncière annuelle 732 €
DPE GES
Ce bien vous intéresse ?
Fieldset par défaut
Fieldset par défaut
Validation

* Champs obligatoires

Contacter l'agence
Validation
Les informations recueillies sur ce formulaire sont enregistrées dans un fichier informatisé par La Boite Immo agissant comme Sous-traitant du traitement pour la gestion de la clientèle/prospects de l'Agence / du Réseau qui reste Responsable du Traitement de vos Données personnelles. La base légale du traitement repose sur l'intérêt légitime de l'Agence / du Réseau. Elles sont conservées jusqu'à demande de suppression et sont destinées à l'Agence / au Réseau. Conformément à la loi « informatique et libertés », vous disposez des droits d’accès, de rectification, d’effacement, d’opposition, de limitation et de portabilité de vos données. Vous pouvez retirer votre consentement à tout moment en contactant directement l’Agence / Le Réseau. Consultez le site https://cnil.fr/fr pour plus d’informations sur vos droits. Si vous estimez, après avoir contacté l'Agence / le Réseau, que vos droits « Informatique et Libertés » ne sont pas respectés, vous pouvez adresser une réclamation à la CNIL. Nous vous informons de l’existence de la liste d'opposition au démarchage téléphonique « Bloctel », sur laquelle vous pouvez vous inscrire ici : https://www.bloctel.gouv.fr Dans le cadre de la protection des Données personnelles, nous vous invitons à ne pas inscrire de Données sensibles dans le champ de saisie libre.
Ce site est protégé par reCAPTCHA, les Politiques de Confidentialité et les Conditions d'Utilisation de Google s'appliquent.