0
Réf : ML/B-241-1

Appartement récent - Type T2 - 40.19 m² - Vue Mer - Résidence Saint Goustan

Le Croisic (44490)
392 000 €

A propos de ce bien

BIEN SUR LE MARCHE - Cobalt Immobilier a le plaisir de vous proposer cet appartement récent de Type T2, de plus de 40 m² au 2ème étage avec ascenseur d’une résidence sécurisée datant du 19e siècle. Situé dans un secteur privilégié du Croisic, face à l'océan, à seulement 300 mètres du célèbre Océarium, à 450 mètres du port de pêche, à proximité de la navette reliant Le Croisic à Pen Bron "Le Galipetant" et à seulement 1 km du centre ville, il sera parfait pour vous ressourcer.

Avant de vous décrire l'appartement, nous nous devons de vous raconter les multiples vies de ce bâtiment protégé, historique et emblématique du Croisic érigé en 1844. Tout d’abord Hôtel - Casino "Etablissement de bains DESLANDES-ORIERE", puis sanatorium et centre hélio - marin, la résidence Saint Goustan est redevenue une résidence de tourisme au début des années 2000. Seule, l’ancienne partie du bâtiment, accueillant, à l’origine, le casino, puis transformée en chapelle par l’Ordre Hospitalier des Frères de St-Jean de Dieu, n’avait pas été restaurée.

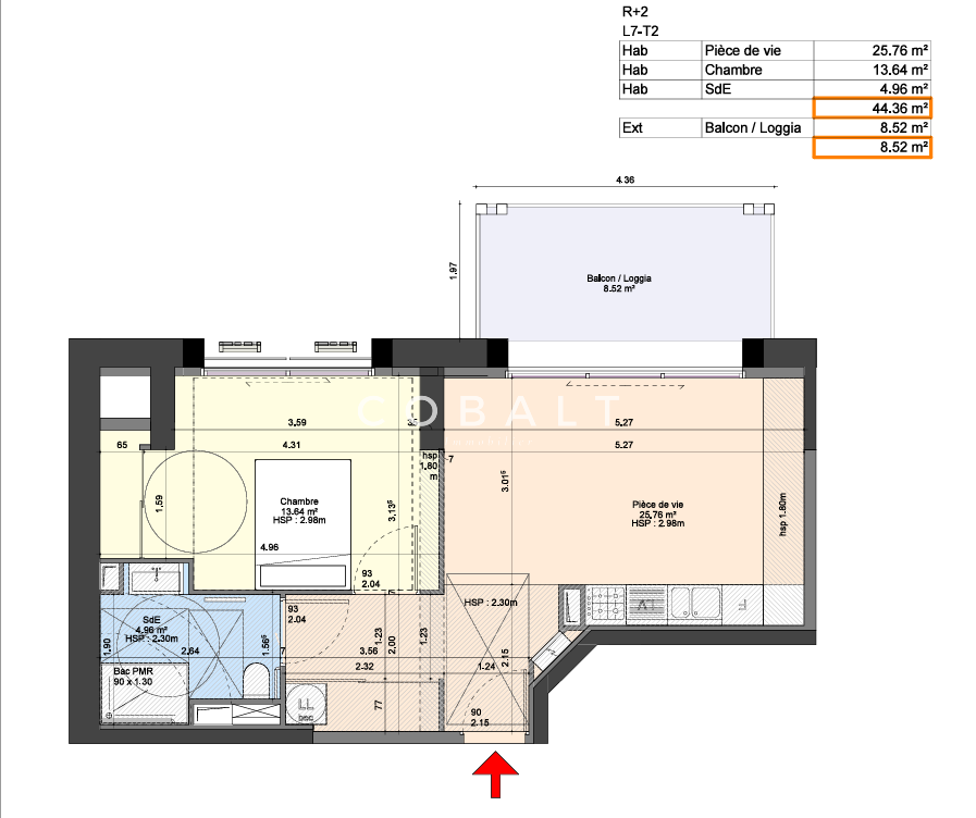
L'appartement se compose d'une entrée avec placards, d'une pièce de vie de plus de 25 m² avec sa cuisine aménagée et semi-équipée (plaques de cuisson, hotte, réfrigérateur-top) exposée ouest, le tout donnant sur le balcon, idéal pour profiter de cette vue imprenable sur l'océan tout en étant confortablement installé, d'une chambre avec placards retraçant une partie de vie de l'ancienne Chapelle grâce à ses vitraux d'origine ainsi que d'une salle d'eau (douche à l'italienne, douche parapluie) avec WC suspendu.

Une place de stationnement aérienne privative et un espage vert en commun viennent parfaire ce bien.

Les atouts : secteur idyllique et recherché, résidence emblématique du Croisic, vue imprenable sur l'océan, garanties décennales.

FRAIS DE NOTAIRE REDUITS / PRIX PROMOTEUR

Procédure en cours

Bien en copropriété. Lot référence L7. Charges de copropriété de 528 € / trimestre soit 176 € / mois. Estimations des coûts annuels des énergies compris entre 440 € et 640 € (abonnements compris). Prix indexés au 1er janvier 2025. Honoraires d'agence à la charge du Vendeur. Prix de vente : 392 000 €. Pour de plus amples renseignements, veuillez contacter Mathilde LAMBERT soit par téléphone au 06.58.62.85.46 soit par mail mathilde.lambert@cobalt-immobilier.fr.

Réf : ML/B-241-1

Descriptif du bien

TRAD_PAMPERO_Caracteristique Valeurs
Code postal 44490
Surface habitable (m²) 40,19 m²
Surface loi Carrez (m²) 40,19 m²
Nombre de chambre(s) 1
Nombre de pièces 2
Etage 2
Vue MER
TRAD_PAMPERO_Caracteristique Valeurs
Nb de salle d'eau 1
Cuisine Américaine
Balcon OUI
Terrasse NON
Murs mitoyens 3
Cave NON
Exposition Ouest
Année de construction 1850
TRAD_PAMPERO_Caracteristique Valeurs
Copropriété OUI
TRAD_PAMPERO_Caracteristique Valeurs
Prix de vente 392 000 €
Les honoraires d'agence seront intégralement à la charge du vendeur  
DPE GES
Ce bien vous intéresse ?
Fieldset par défaut
Fieldset par défaut
Validation

* Champs obligatoires

Contacter l'agence
Validation
Les informations recueillies sur ce formulaire sont enregistrées dans un fichier informatisé par La Boite Immo agissant comme Sous-traitant du traitement pour la gestion de la clientèle/prospects de l'Agence / du Réseau qui reste Responsable du Traitement de vos Données personnelles. La base légale du traitement repose sur l'intérêt légitime de l'Agence / du Réseau. Elles sont conservées jusqu'à demande de suppression et sont destinées à l'Agence / au Réseau. Conformément à la loi « informatique et libertés », vous disposez des droits d’accès, de rectification, d’effacement, d’opposition, de limitation et de portabilité de vos données. Vous pouvez retirer votre consentement à tout moment en contactant directement l’Agence / Le Réseau. Consultez le site https://cnil.fr/fr pour plus d’informations sur vos droits. Si vous estimez, après avoir contacté l'Agence / le Réseau, que vos droits « Informatique et Libertés » ne sont pas respectés, vous pouvez adresser une réclamation à la CNIL. Nous vous informons de l’existence de la liste d'opposition au démarchage téléphonique « Bloctel », sur laquelle vous pouvez vous inscrire ici : https://www.bloctel.gouv.fr Dans le cadre de la protection des Données personnelles, nous vous invitons à ne pas inscrire de Données sensibles dans le champ de saisie libre.
Ce site est protégé par reCAPTCHA, les Politiques de Confidentialité et les Conditions d'Utilisation de Google s'appliquent.