0
Réf : SC-386-6

MAISON T4 NEUVE AVEC JARDIN & TERRASSE – CLISSON

Clisson (44190)
246 583 €

A propos de ce bien

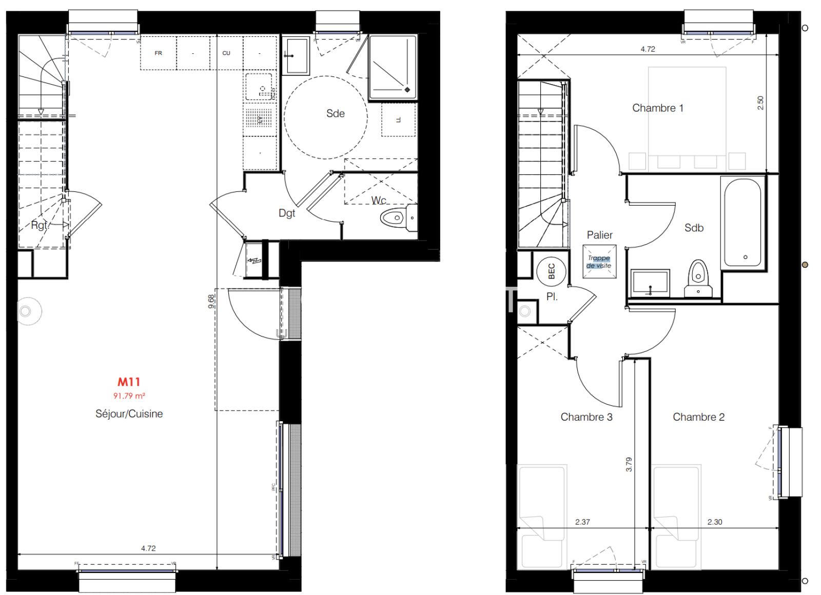
Le Cabinet Cobalt Immobilier vous propose cette maison T4, idéalement située à 7 min à pied de la gare de Clisson, permettant de rejoindre Nantes en 20 min en train. Cette maison de 91,79 m² habitables offre une spacieuse pièce de vie de 40,37 m², trois chambres (10,16 m² – 11,36 m² – 9,53 m²), une salle de bain, une salle d’eau, un WC indépendant ainsi que de nombreux rangements. Profitez d’un jardin privatif de 61,95 m², d’une terrasse de 14,89 m² et d’un garage à vélos de 6,14 m², offrant un cadre de vie agréable et lumineux. À quelques pas des commerces, du cinéma et de la médiathèque, cette maison allie confort et praticité. Livraison 2ème trimestre 2026 – Idéal résidence principale ou investissement. Pour plus d’informations, contactez Sébastien CARTON au 07 82 29 44 65.

Prix tenant compte de la remise commerciale en cours et réservée aux personnes éligibles (LLI-TVA à 10%).

Réf: SC 386-6

Descriptif du bien

TRAD_PAMPERO_Caracteristique Valeurs
Code postal 44190
Surface habitable (m²) 91,79 m²
Surface loi Carrez (m²) 91,79 m²
Nombre de chambre(s) 3
Nombre de pièces 4
Nombre de niveaux 2
TRAD_PAMPERO_Caracteristique Valeurs
Nb de salle de bains 1
Nb de salle d'eau 1
Cuisine Américaine
Mode de chauffage Gaz
Type de chauffage Radiateur
Format de chauffage Individuel
Terrasse OUI
Murs mitoyens 1
Nombre de parking 2
Exposition Sud-Ouest
Année de construction 2026
TRAD_PAMPERO_Caracteristique Valeurs
Copropriété OUI
plan de sauvegarde NON
TRAD_PAMPERO_Caracteristique Valeurs
Prix de vente 246 583 €
Les honoraires d'agence seront intégralement à la charge du vendeur  
DPE GES
Ce bien vous intéresse ?
Fieldset par défaut
Fieldset par défaut
Validation

* Champs obligatoires

Contacter l'agence
Validation
Les informations recueillies sur ce formulaire sont enregistrées dans un fichier informatisé par La Boite Immo agissant comme Sous-traitant du traitement pour la gestion de la clientèle/prospects de l'Agence / du Réseau qui reste Responsable du Traitement de vos Données personnelles. La base légale du traitement repose sur l'intérêt légitime de l'Agence / du Réseau. Elles sont conservées jusqu'à demande de suppression et sont destinées à l'Agence / au Réseau. Conformément à la loi « informatique et libertés », vous disposez des droits d’accès, de rectification, d’effacement, d’opposition, de limitation et de portabilité de vos données. Vous pouvez retirer votre consentement à tout moment en contactant directement l’Agence / Le Réseau. Consultez le site https://cnil.fr/fr pour plus d’informations sur vos droits. Si vous estimez, après avoir contacté l'Agence / le Réseau, que vos droits « Informatique et Libertés » ne sont pas respectés, vous pouvez adresser une réclamation à la CNIL. Nous vous informons de l’existence de la liste d'opposition au démarchage téléphonique « Bloctel », sur laquelle vous pouvez vous inscrire ici : https://www.bloctel.gouv.fr Dans le cadre de la protection des Données personnelles, nous vous invitons à ne pas inscrire de Données sensibles dans le champ de saisie libre.
Ce site est protégé par reCAPTCHA, les Politiques de Confidentialité et les Conditions d'Utilisation de Google s'appliquent.