0
Réf : ML/B-241-6

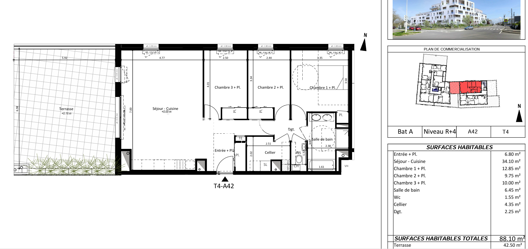
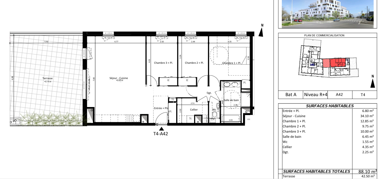
Appartement de 2024 - Type T4 - Vue Mer - Terrasse 42.50 m² - Box en sous-sol

Saint-Nazaire (44600)
368 371 €

A propos de ce bien

BIEN RARE SUR LE MARCHE - Le Cabinet Cobalt Immobilier a le plaisir de vous faire découvrir cet appartement neuf de Type T4, d'environ 90 m² au 4ème et dernier étage avec ascenseur d’une résidence sécurisée datant de 2024. Situé dans le secteur de la Côte d'Amour à Saint-Nazaire, vous bénéficierez de tous les commerces, services, transports en commun nécessaires à une vie urbaine.

L'appartement qui vous offrira confort et détente se compose d'une entrée avec placards, d'une pièce de vie lumineuse de 35 m² avec son espace cuisine prête à être aménagée selon vos goûts, le tout exposé plein ouest, et donnant accès à la terrasse de plus de 42 m², une véritable pièce à part entière où vous pourrez profiter d'une vue exceptionnelle. Vous bénéficierez d'un véritable espace nuit, qui se compose de trois chambres avec placards, d'une salle de bains (baignoire, douche à l'italienne, doubles vasques), d'un cellier / buanderie ainsi qu'un WC indépendant avec lave-mains.

Un garage privatif en sous-sol et une cave / local à vélos privatif viennent compléter ce bien.

Les prestations sont de grande qualité : résidence de standing, finitions soignées, confort acoustique et thermique optimal.

Les atouts : Résidence sécurisée, bloc de boîtes à lettres / colis connectée, fibre, porte du garage motorisée sectionnelle, terrasse de plus de 40 m², vue mer, garanties décennales.

PRIX AFFICHE TENANT COMPTE D'INE CLIENTELE ELIGILBLE A UNE TVA REDUITE à 5.5% SOUS CONDITIONS

FRAIS DE NOTAIRE REDUITS / PRIX PROMOTEUR

Bien en copropriété. Copropriété de 143 lots dont 78 lots d'habitation. Charges de copropriété de 313 € / trimestre comprenant l'électricité et le ménage des parties communes, l'entretien de l'ascenseur et de la VMC, les ordures ménagères, l'assurance de la copropriété. Estimations des coûts annuels des énergies compris entre 680 € € et 920 € (abonnements compris). Prix indexés sur les années 2021, 2022 et 2023. Honoraires d'agence à la charge du Vendeur. Prix de vente : 368 371 €. D'autres appartements sont disponibles à la vente, mais non diffusés, dans la résidence. Pour de plus amples renseignements, veuillez contacter Mathilde LAMBERT soit par téléphone au 06.58.62.85.46 soit par mail mathilde.lambert@cobalt-immobilier.fr.

Réf : ML/B-241-6

Descriptif du bien

TRAD_PAMPERO_Caracteristique Valeurs
Code postal 44600
Surface habitable (m²) 88,10 m²
Surface loi Carrez (m²) 88,10 m²
Nombre de chambre(s) 3
Nombre de pièces 4
Etage 4
Ascenseur OUI
Vue MER
TRAD_PAMPERO_Caracteristique Valeurs
Nb de salle de bains 1
Cuisine Américaine
Mode de chauffage Gaz de ville
Type de chauffage Chaudiére
Format de chauffage Individuel
Interphone OUI
Visiophone OUI
Balcon NON
Terrasse OUI
Nombre de garage 1
Cave OUI
Exposition Ouest
Année de construction 2024
TRAD_PAMPERO_Caracteristique Valeurs
Copropriété OUI
nombre de lots 13
TRAD_PAMPERO_Caracteristique Valeurs
Prix de vente 368 371 €
Les honoraires d'agence seront intégralement à la charge du vendeur  
DPE GES
Ce bien vous intéresse ?
Fieldset par défaut
Fieldset par défaut
Validation

* Champs obligatoires

Contacter l'agence
Validation
Les informations recueillies sur ce formulaire sont enregistrées dans un fichier informatisé par La Boite Immo agissant comme Sous-traitant du traitement pour la gestion de la clientèle/prospects de l'Agence / du Réseau qui reste Responsable du Traitement de vos Données personnelles. La base légale du traitement repose sur l'intérêt légitime de l'Agence / du Réseau. Elles sont conservées jusqu'à demande de suppression et sont destinées à l'Agence / au Réseau. Conformément à la loi « informatique et libertés », vous disposez des droits d’accès, de rectification, d’effacement, d’opposition, de limitation et de portabilité de vos données. Vous pouvez retirer votre consentement à tout moment en contactant directement l’Agence / Le Réseau. Consultez le site https://cnil.fr/fr pour plus d’informations sur vos droits. Si vous estimez, après avoir contacté l'Agence / le Réseau, que vos droits « Informatique et Libertés » ne sont pas respectés, vous pouvez adresser une réclamation à la CNIL. Nous vous informons de l’existence de la liste d'opposition au démarchage téléphonique « Bloctel », sur laquelle vous pouvez vous inscrire ici : https://www.bloctel.gouv.fr Dans le cadre de la protection des Données personnelles, nous vous invitons à ne pas inscrire de Données sensibles dans le champ de saisie libre.
Ce site est protégé par reCAPTCHA, les Politiques de Confidentialité et les Conditions d'Utilisation de Google s'appliquent.